Descripción
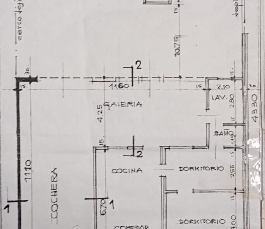
HEIMA vende casa ubicada en barrio Villa Rosas sobre calle Jorge Newbery con orientación oeste, esta propiedad se extiende sobre una superficie total de 612.69 m², de los cuales 166.50 m² son cubiertos y 446,19 m2 libres.
Terreno de 14.15 x 43.30 metros.
La propiedad se encuentra a metros de la escuela primaria y secundaria y de la plaza principal del barrio y los comercios haciendo de la misma una excelente ubicación.
La casa cuenta 2 dormitorios (con posibilidad de convertir un sector en un tercer dormitorio), 1 baño, cocina-comedor, living, lavadero y galería techada.
La propiedad también dispone de una cochera cubierta y un amplio patio con asador y horno de barro.
Su construcción esta dada por mampostería común revestida, techo de loza y pisos cerámicos.
En cuanto a servicios, cuenta con agua corriente, gas natural (la conexión no está realizada), desagüe cloacal y alumbrado público.
Acepta departamentos como parte de pago. Lista para Escriturar. Apta crédito hipotecario.
Esta casa es una excelente oportunidad de inversión en una zona tranquila y accesible.
No pierda la oportunidad de adquirir este inmueble con gran potencial para personalizar a su gusto y convertirlo en el hogar de sus sueños.
Amplio terreno para ampliar o para pileta.
No apta crédito hipotecario
¡Llámenos para conocer más en detalle esta propiedad!
Contacto : Viviana Bai
Tel : 3492 604197
¡Llámenos para conocer más en detalle esta propiedad!
VIVIANA BAI
Tel: 3492 604197
IG : vivianabai.grupoheima
Home